Квартира-трансформер: как разместить все необходимое на небольшой площади
Эта квартира - экспериментальный проект шведской фирмы White Arkitekter, названная Dromlagenheten, что на шведском обозначает "дом мечты". "Мечта" помещается на всего 55 квадратных метрах и поражает удобством и комфортом.
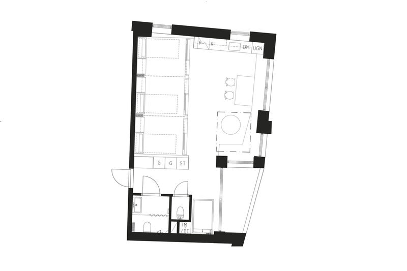
В этом прототипе маленькой квартиры перегородки могут легко двигаться и организовываться в комнаты, образуя собой внутренние стены. Пространство в центре остается свободным и может быть использовано как жилая и обеденная зона, спальня и даже как кухня - в зависимости от того, что на данный момент нужно хозяевам.
Кухонный блок и диван располагаются вдоль двух стен. Вдоль другой стены квартиры расположены три небольшие спальни. Спальни с односпальными кроватями отделены друг от друга звукоизолирующими перегородками, а также оборудованы небольшими столиками - точнее, столешницами, откидывающимися от стены.
В центральной зоне есть и двуспальная кровать, но она спрятана в потолке! Достаточно опустить ее на опору из компонентов дивана, чтобы гостиная превратилась в спальню.
Главными методами достижения универсальности концепта стали складывающаяся, встроенная и спрятанная мебель. Для хранения используется и пространство в полу. Более того, даже ванна спрятана под складывающимся полом в прачечной!
Архитектурная студия называет свое творение "универсальным концептом жилья", что впрочем вполне оправдано - такое жилье вполне способно вместить как холостяка, так и семью с детьми.







