Невероятно комфортный домик на дереве
Джерело: Dezeen
Дом Yoki Treehouse располагается между ветвями двух старых кипарисовых деревьев, на высоте 7 метров над ручьем. Название хижины происходит от слова из языка индейских племен хопи, которое обозначает дождь. Именно дожди питают водные источники этой местности и ручей, протекающий непосредственно под домом.
Джерело: Dezeen
Джерело: Dezeen
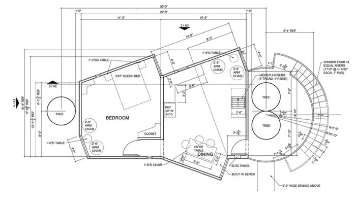
Дом состоит из двух объемов: больший имеет площадь 46 квадратных метров и расположен на высоте, а маленький представляет собой баню и расположен на земле. Между ними натянут романтичный подвесной мост длиной 18 метров.
Джерело: Dezeen
Джерело: Dezeen
Вокруг дома оборудованы многочисленные террасы, на которых можно посидеть, наслаждаясь природой и свежим воздухом. Красивая спиральная лестница ведет к площадке, сквозь которую прорастают два кипарисовых дерева. Через эту площадку гости и попадают внутрь дома.
Джерело: Dezeen
Джерело: Dezeen
Внутри плана неправильной формы комфортно разместили небольшую кухню, столовую, гостиную, кровать на мезонине и отдельную спальню. Обилие деревянных фактур делает домик очень уютным и гостеприимным, а дизайнерские предметы мебели напоминают о том, что это - место роскошного отдыха.
Джерело: Dezeen
Джерело: Dezeen
Джерело: Dezeen
Комнаты обставлены просто, но со вкусом. В спальне композиционным центром служит большая художественная фотография над кроватью. Дополнительный комфорт создает мягкий ковер с этническими мотивами.
Джерело: Dezeen
Джерело: Dezeen
Периметр стен изрезан большим количеством окон разной формы - они делают помещение светлым, просторным и раскрывает интерьер окружающей среде. Ощущение единства поддерживают детали из черного металла, использованные как для оформления лестниц, так и для деталировки внутренних пространств.
Джерело: Dezeen
В домике-бане возле ванной имеются панорамные окна, позволяющие расслабиться на фоне крон деревьев. Этот домик отделан с помощью фактур бетона и древесины сосны. Главный дом отделан березовой фанерой.
Фото: Smiling Forest.












